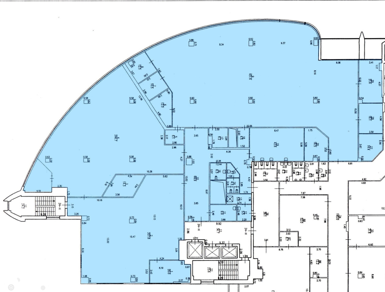
БЦ "Континент" удачно расположен внутри квартала, ограниченного Московским шоссе, Дунайским пр., ул. Ленсовета и ул. Звездной, станция метро «Звездная» находится через дорогу от центра. Рядом располагается кольцо маршрутов общественного транспорта по направлениям: г. Тосно, г. Пушкин, г. Колпино, пос. Шушары. Организован удобный подъезд со стороны Московского шоссе, открывающий прямую дорогу к КАДу, Дунайскому проспекту, Пулковскому шоссе. БЦ «Континент» представляет собой офисное пространство класса В+, в многофункциональном комплексе «Континент». БЦ оснащен передовыми инженерными системами, приточно-вытяжная вентиляция и центральное кондиционирование, поддерживают оптимальный микроклимат в офисах. Функционируют 5 лифтов, 4 из которых являются пассажирскими. Система безопасности включает в себя скрытые камеры, охранную сигнализацию. Доступ в здание осуществляется по пропускам. Крытая парковка на 350 машино-мест+большая открытая парковка. Эффективная и функциональная планировка этажей, использование самого современного инженерного обеспечения и телекоммуникаций создают эргономичное пространство офисных площадей. Офисное помещение располагается на последнем 9-м этаже, из окон которого открываются прекрасные виды на город. Высота потолков варьируется от 2,5 метров в санузлах и гардеробной до 5,3 метров в зонах опенспейс, переговорных и кабинетов. При соблюдении нормативов можно разместить до 250 рабочих мест. На помещение выделено 75 кВт электроэнергии. Офис оборудован системой контроля доступа, собственными санузлами, кухней, гардеробной, серверной и техническими помещениями. Торги на повышение цены. Дата торгов 30.11.2025 Приглашаю на просмотр!

Расположение

Регион г Санкт-Петербург
Город г Санкт-Петербург
Район города Московский
Улица Звёздная улица
Дом 1

Об объекте

Площадь общая, м² 1227.2
Этаж 9
Телефон Да
Высота потолков 4.0
Кадастровый номер 78:14:0769201:1120
Мебель Есть

О здании

Этажей 9
Дом 1
Год постройки 2008
Название здания Континент на Звездной
Свойства Кафе, Супермаркет, Торговая зона
Площадь участка сот.

Условия продажи

Тип сделки Продажа
Цена 99 911 111 ₽
Цена за м2 81 414 ₽
Период оплаты Не выбрано
Продажа
Просмотрено 40 раз

Офис, 1227.2 м²

г Санкт-Петербург, ул Звёздная, д 1 · На карте
Звездная · 1 мин пешком
99 911 111
81 414 ₽/м2
Задать вопрос Скачать презентацию

Поделиться:


Бурков Евгений Софронович
Менеджер проекта:

Бурков Евгений Софронович

+79219236883
Видео
Нужна помощь в подборе лучших предложений?

Оставьте заявку, и наши риэлторы свяжутся с вами!