Про ЖК «Вместе»
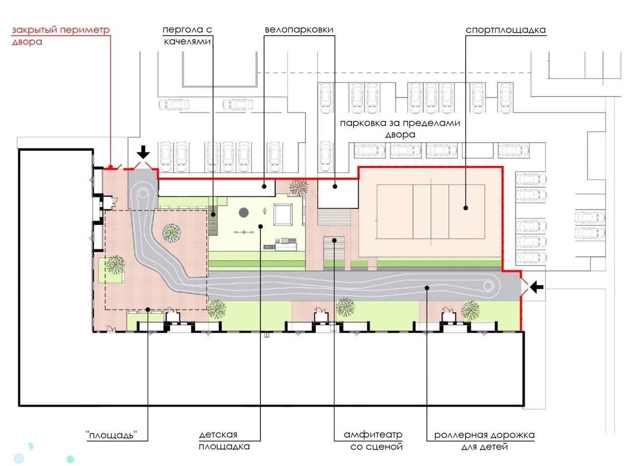
Жилой комплекс "Вместе" это 12 высоток с собственной инфраструктурой и безбарьерной средой. Само название комплекса «Вместе» и характер жилого квартала возникли не случайно. Дефицит общения, душевности и добрососедства будет восполнен созданной в новом квартале дружеской атмосферой и концепцией благоустройства. Что можно будет делать вместе в новом ЖК? - Вместе с семьей активно проводить досуг — заниматься спортом, гулять, кататься летом на велосипедах, а зимой — на санках. - Вместе с соседями устраивать пикники в сквере или веселые старты на собственном стадионе. - Вместе с гостями сидеть у фонтана или совершать покупки во вновь построенном торгово-развлекательном комплексе. - Вместе с друзьями ездить на берег Шершней, чтобы отдохнуть на пляже и пожарить мясо на углях в городском бору. - Вместе с близкими по духу людьми отдыхать и веселиться, любить и беречь, расти и учиться, гулять и играть, обсуждать последние новости и интересные книги. Философия жилого комплекса «Вместе» сводится к идее — «Место силы и развития нового поколения». Совсем рядом с ЖК «Вместе» — зеленые рощи, Шершневское водохранилище и городской парк. В радиусе 2 км — гипермаркет «Лента», ТК «Кольцо», ТК «Маяк». В пешей доступности — остановки общественного транспорта, 15 минут — до центра города на машине, 2 минуты — до Уфимского тракта на выезд из города. Силами застройщика будет запущен маршрутный транспорт от самого квартала. ЖК «Вместе» — это функциональное жилое пространство в наилучшем исполнении по доступной цене. Архитекторы представили общую концепцию квартальной застройки — упорядоченную сетку улиц, проект застройки и озеленения. Благоустройство микрорайона предполагает современные детские и спортивные площадки, стадион, универсальный торгово-развлекательный комплекс, велодорожки и велопарковки, центральный сквер с аллеей из фонтанов, собственную городскую площадь как точку притяжения всех жителей, детский сад. Большой выбор планировочных решений — от 26 до 85 кв. м. Застройщик избавит новоселов от утомительных поездок по строительным магазинам и отделочных работ.
ЖК «Вместе»
Россия, Челябинск, улица Дмитрия Неаполитанова, 24Застройщик
О комплексе
Расположение
| Регион | Челябинская область |
| Город | г Челябинск |
| Улица | Дмитрия Неаполитанова улица |
|
Для объектов из данного ЖК доступны сделки с кэшбеком! |
Нужна помощь в подборе лучших предложений?
Оставьте заявку, и наши риэлторы свяжутся с вами!











